Projektwettbewerb im offenen Verfahren, 2025

Erweiterung Schulanlage Meierhof, Baden

Zusammenarbeit mit erwin erhart ag Landschaftsarchitektur

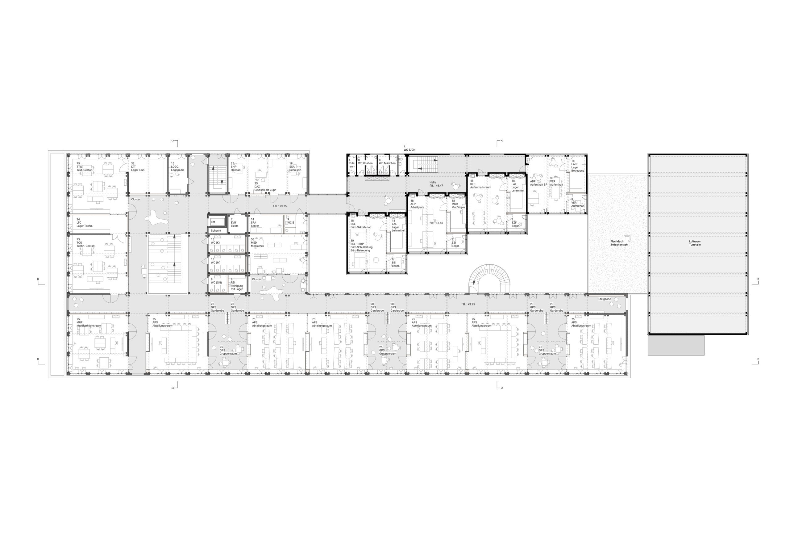
Der Entwurf für die Erweiterung der Schulanlage Meierhof folgt der Leitidee «ABBRACCIO» und schafft einen modernen, nachhaltigen und kindgerechten Lern- und Lebensraum, der Schule, Betreuung und Quartierleben zu einer umarmenden Bildungslandschaft verbindet. Neubau und Bestand bilden ein harmonisches Ensemble, das die Qualitäten des Ortes respektiert und gleichzeitig eigenständig weiterentwickelt. Entlang der Stadtbachstrasse entsteht ein markanter Baukörper, der über Brücken direkt über den Stadtbach mit dem Bestand verknüpft ist und sich zu einem zentralen, überdachten Hof öffnet. Das bestehende Raster von 3 ? 3 Metern dient als flexibles Grundgerüst für modulare Holzbau-Strukturen und ermöglicht eine wirtschaftliche, nachhaltige und zukunftsorientierte Weiterentwicklung.

Die naturnah gestalteten Aussenräume orientieren sich an der Auenlandschaft und verbinden Bewegungsflächen, Lernorte, Rückzugsmöglichkeiten und naturnahe Elemente. Die Renaturierung des Stadtbaches wird konsequent fortgeführt und in das Gestaltungskonzept integriert. Schülerinnen, Schüler und das Quartier können diese Flächen aktiv mitgestalten, etwa durch Aneignungszonen, flexible Möbel oder temporäre Kulturprojekte, wodurch die Aussenräume lebendig bleiben und von der Natur wie den Nutzenden weiterentwickelt werden.

Die Organisation der Schulanlage schafft überschaubare Einheiten für Kindergarten, Primarschule und Betreuung, gleichzeitig ermöglichen flexible Lernlandschaften kooperatives Lernen, Rückzugsmöglichkeiten und individuelle Förderung. Sichtbeziehungen, Offenheit und direkte Verbindungen zu den Aussenräumen fördern soziale Interaktion und Orientierung.

Die Architektur folgt einem modularen, nachhaltigen Ansatz mit langlebigen Materialien, Dachbegrünung, einheimischer Bepflanzung und einer effizienten Photovoltaikanlage. Das kompakte Gebäude in Kombination mit durchlüfteten Quartierachsen verbessert Mikroklima und Lebensqualität. Klare Orientierung, sichere Zugänge, stufenlose Wege und barrierefreie Sanitärräume sorgen für Sicherheit und Inklusion. Modulares Bauen, wartungsfreundliche Oberflächen und einfache Haustechnik sichern langfristige Wirtschaftlichkeit. So entsteht eine offene, lebendige und nachhaltige Bildungslandschaft, in der sich Kinder, Lehrpersonen und das Quartier wohlfühlen und entfalten können.