Schlussrunde - Gesamtleistungswettbewerb, 2025

Neubau Recyclinghof, Wetzikon

Zusammenarbeit mit schaerholzbau ag und Hariyo Freiraumgestaltung GmbH

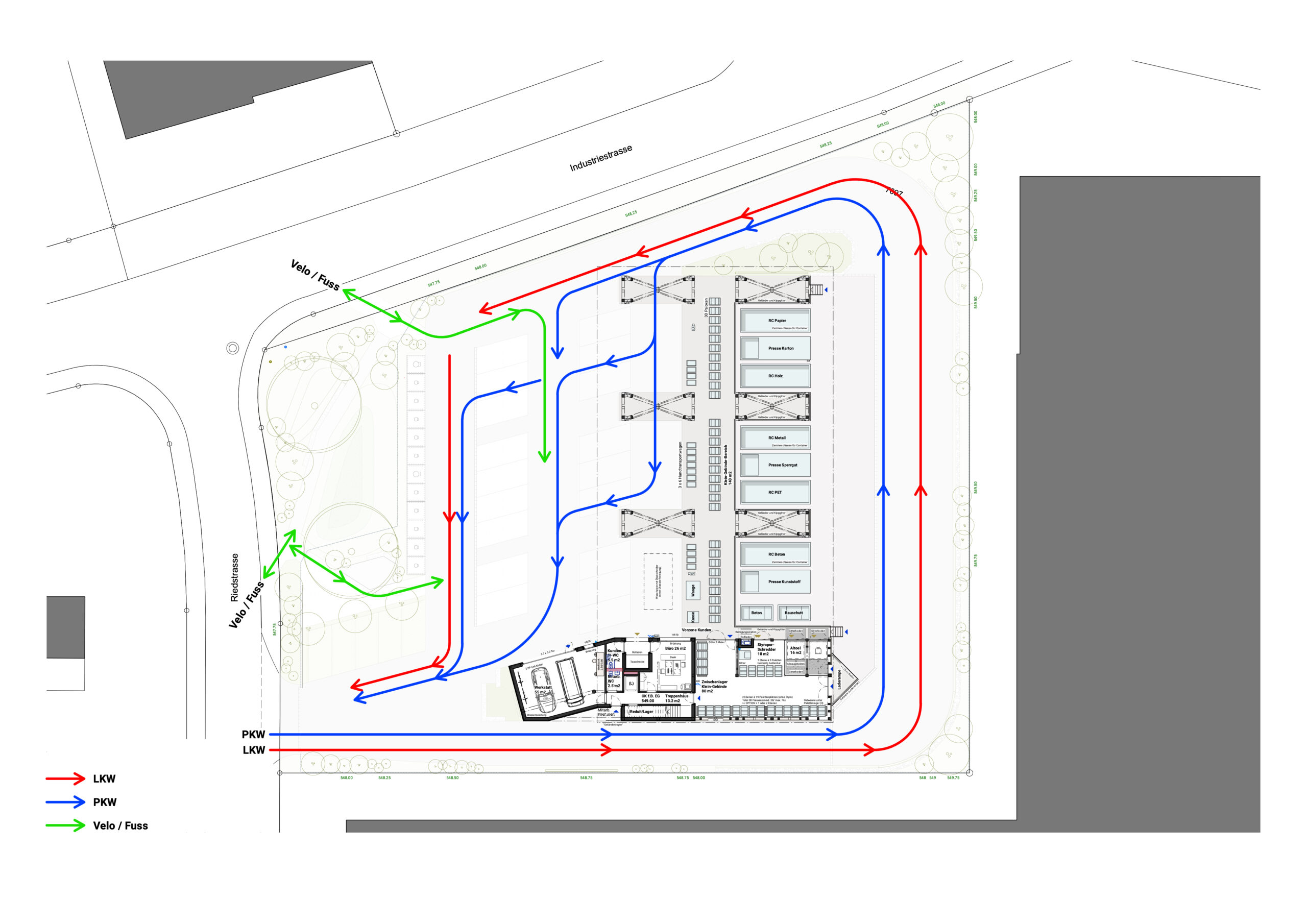
Der Recyclinghof in Wetzikon positioniert das Betriebsgebäude zentral im Industriegebiet und reagiert auf die vorhandene Strassenstruktur sowie eine markante Kreuzung. Eine öffentliche Grünfläche stärkt die Orientierung, während die Erschliessung über eine Ein- und Ausfahrt an der Riedstrasse klar organisiert ist. Die Umfahrung des Gebäudes ermöglicht Wartebereiche und die Anbindung an den tiefergelegten Containerumschlagplatz, wodurch kompakte Flächen effizient genutzt werden.

Das zweigeschossige Holzgebäude folgt dem Leitgedanken «Recycling steht in Bezug zur Natur». Skulptural gestaltete Tragwerke, expressive Stützen und hochwertige Materialien schaffen einen hohen Wiedererkennungswert, vermitteln Offenheit und Dauerhaftigkeit und machen die Funktionen klar ablesbar. Das Lager für Paloxen nutzt ein zweigeschossiges Regalsystem, das Obergeschoss beherbergt nur regelmässig genutzte Bereiche, und das Dach ist extensiv begrünt, was Retention und Kühlung unterstützt.

Die Betriebsorganisation ist effizient: Kundenzufahrten, Parkplätze und Anlieferungsbereiche sind klar getrennt, Handwagen, Container und Paloxenplätze gut erreichbar. Büro- und Mitarbeiterbereiche sind zentral angeordnet, bieten Sichtbeziehungen zu Kunden- und Logistikbereichen und ermöglichen kurze Wege. Die Entsorgungsnischen für Mulden und Container sind so dimensioniert, dass flexible Bedienung durch LKW möglich ist. Sicherheits- und Brandschutzmassnahmen, Videoüberwachung und klare Fluchtwege sorgen für einen reibungslosen, sicheren Ablauf.

Die Gebäudetechnik nutzt erneuerbare Energien und effiziente Systeme: Wärmeversorgung erfolgt über Luft-Wasser-Wärmepumpen, Fussbodenheizung und thermoaktive Bauteile, Warmwasser über Wärmepumpenboiler, ergänzt durch Abluftwärmerückgewinnung und eine Photovoltaikanlage auf dem Dach. Die elektrische Anlage ist modular und teilweise automatisiert. So entsteht ein funktionaler, energieeffizienter und ökologisch optimierter Recyclinghof mit hoher Betriebs- und Nutzungssicherheit.