1. Rang - Planerausschreibung, 2023

Schul- / Sportinfrastruktur, Röschenz

Zusammenarbeit mit LAND SCHAFFT GmbH Landschaftsarchitektur

Am südlichen Rand des Dorfes betreibt die Gemeinde Röschenz ihre Primarschule mit Turnhalle, Aula und grosszügigen Aussensportanlagen. Die in den 1970er-Jahren erstellte Anlage liegt landschaftlich markant an der Fluh und bietet weite Ausblicke über das Laufental. Das Ensemble überzeugt durch eine solide bauliche Struktur und bildet eine gute Grundlage für die Weiterentwicklung.

Nach Jahrzehnten ohne grössere Eingriffe besteht heute Erneuerungsbedarf. Die Gebäudetechnik, die Raumstrukturen und die Lernumgebung entsprechen nicht mehr den heutigen pädagogischen und funktionalen Anforderungen.

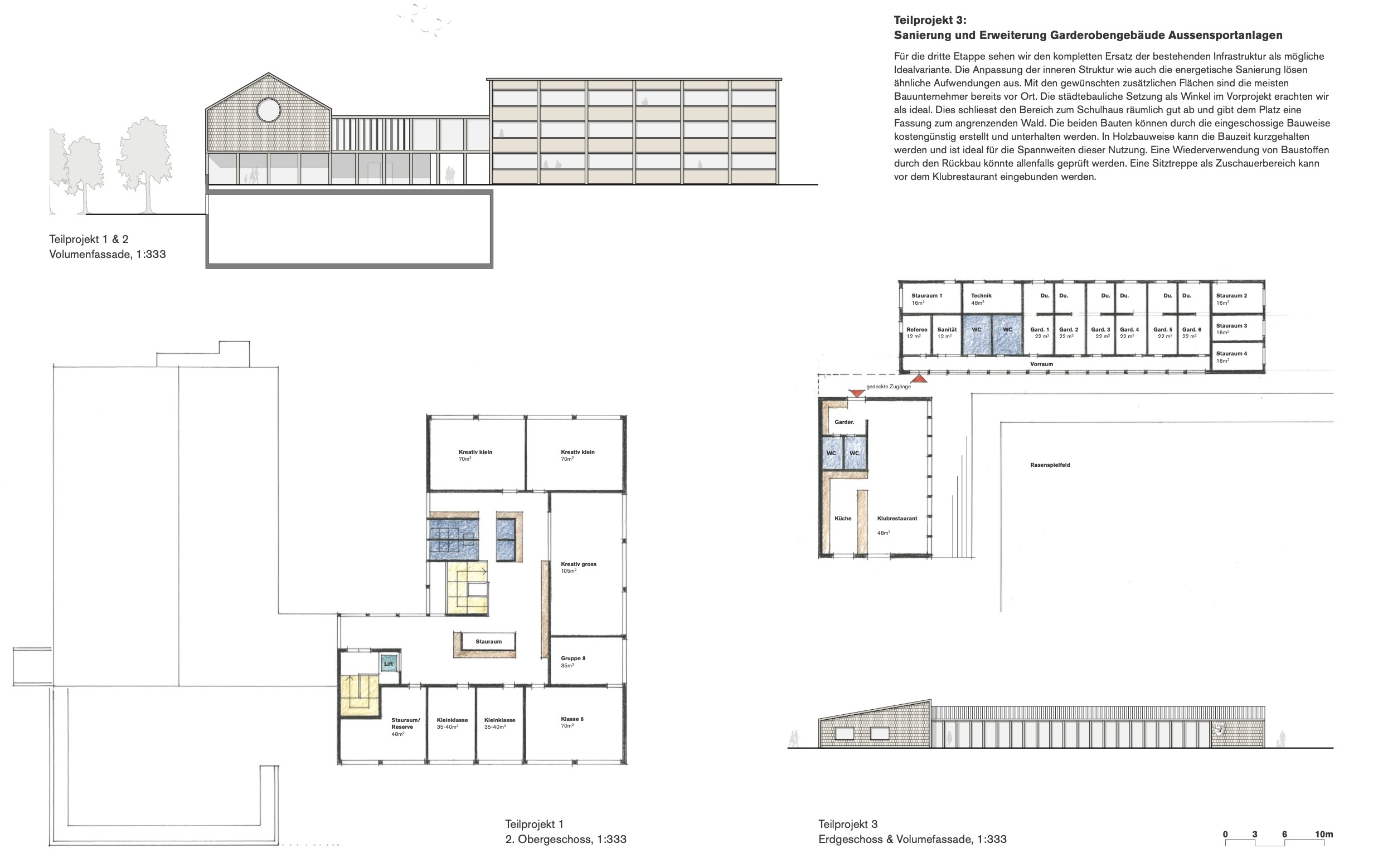
Mit der geplanten Sanierung und Erweiterung von Schulhaus und Turnhalle/Aula sowie dem Neubau einer zusätzlichen Turnhalle und neuen Garderobenanlagen will die Gemeinde die Schul- und Sportinfrastruktur zukunftsfähig machen. Entstehen soll eine zeitgemässe, nachhaltige und offene Anlage, die Lernen, Bewegung und Begegnung fördert – als Mehrwert für Schule, Vereine und das Dorf.

Weiterleitung zum laufenden Projekt