Wir
Portrait
Team
Auszeichnungen
Publikationen
Stellenangebote
Entwerfen
Wettbewerbe
Philosophie
Entwerfen und Verwerfen
Genius Loci
Planen
In Arbeit
Prozess
Nachhaltigkeit
Design to Cost
Bauen
Bauten
Baumanagement
Qualität
Werkliste
Projektplanung 2025
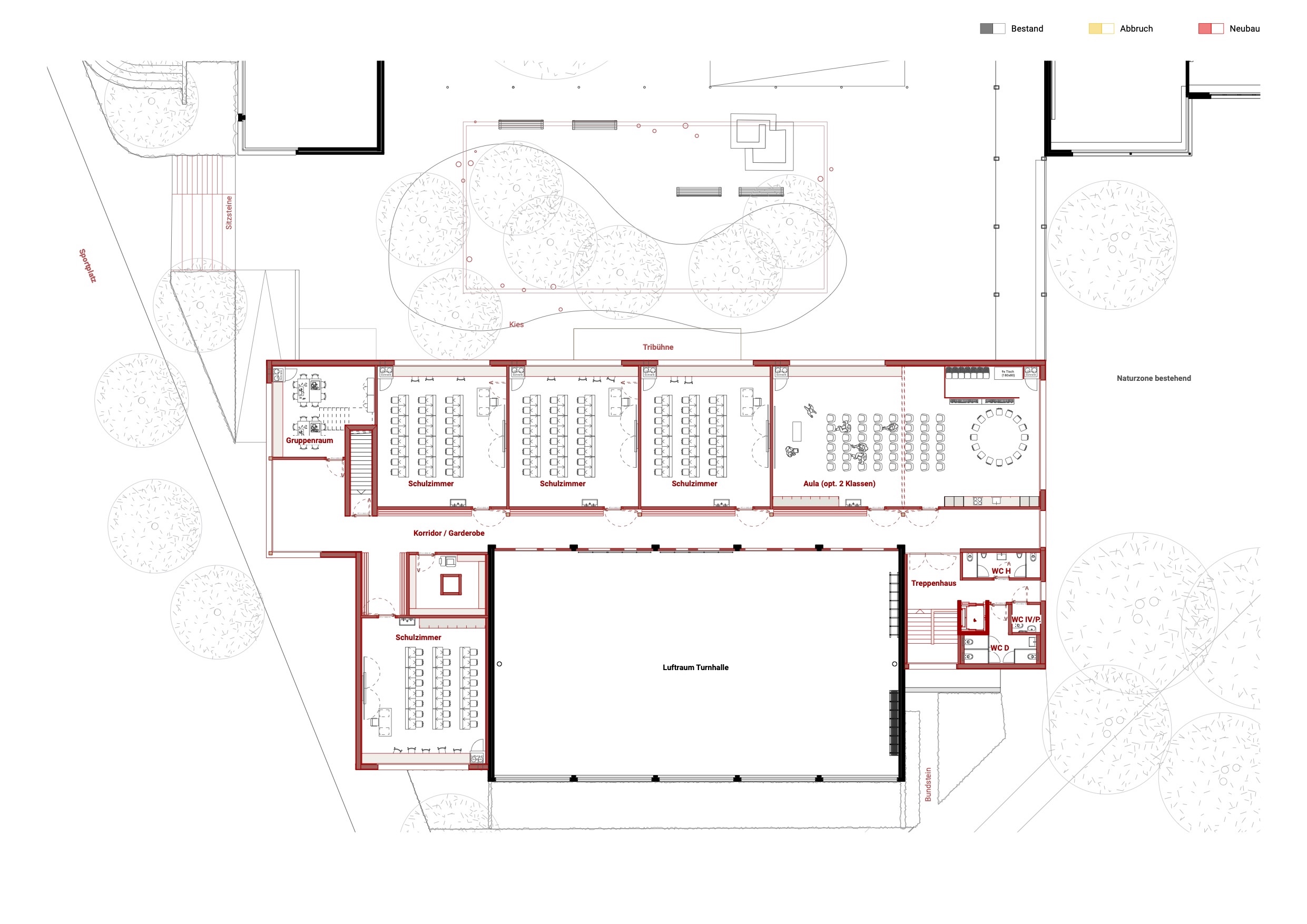
Schulraumerweiterung, Unterkulm
Zurück