Gesamtleistungswettbewerb, 2024

Erweiterung und Aufstockung Heilpädägogische Schule, Langenthal

Zusammenarbeit mit schaerholzbau ag

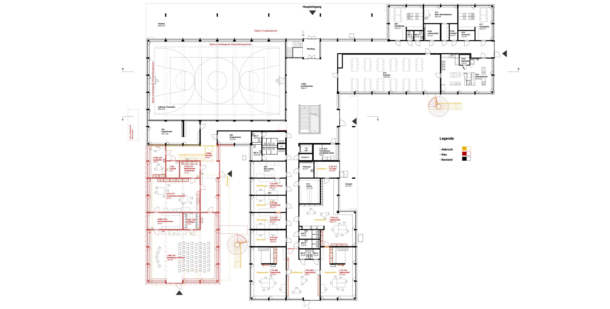
Die Erweiterung und Aufstockung der Heilpädagogischen Schule Oberaargau stärkt die städtebauliche Wirkung des Bestands und fügt sich respektvoll in das gewachsene Quartier ein. Die neuen Baukörper ergänzen das Ensemble durch eine klare, zeitgemässe Architektursprache, die das charakteristische Erscheinungsbild des ursprünglichen Gebäudes von Arnt / Fleischmann fortführt und mit feiner Proportion und Detaillierung weiterentwickelt.

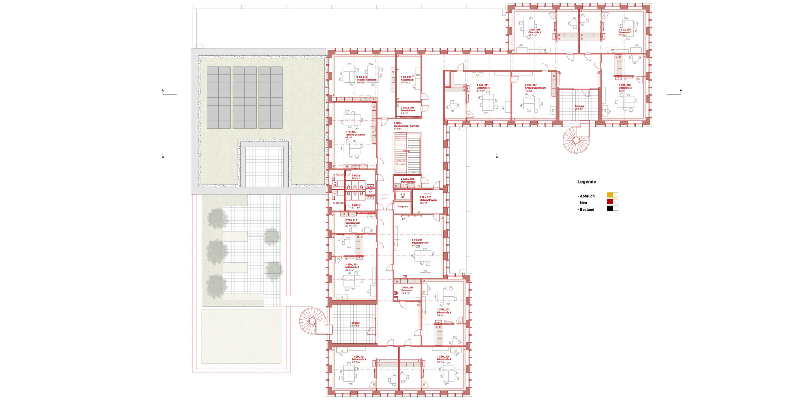
Die Aufstockung in Holzbauweise und der erdgeschossige Anbau reagieren sensibel auf Topografie und Nutzung. Während der Anbau Räume für Musik, Bewegung und Logopädie schafft und den Bestand funktional erweitert, beherbergt die Aufstockung acht neue Klassenzimmer sowie Fachräume für textiles Gestalten und Psychomotorik. Alle Bereiche sind logisch organisiert, flexibel nutzbar und gewährleisten kurze Wege im Alltag.

Gestalterisch knüpft der Neubau an die bestehende Struktur an: Betonlisenen, Sockel und Gesimse werden übernommen, rhythmisch neu interpretiert und mit einer fein ausgebildeten Holzfassade ergänzt. So entsteht ein harmonischer Übergang zwischen Alt und Neu, der die Identität der Schule stärkt. Begrünte Dachflächen, Terrassen und gezielte Öffnungen schaffen neue Aussenräume mit hoher Aufenthaltsqualität.

Nachhaltigkeit und Energieeffizienz stehen im Zentrum des Projekts. Die Aufstockung in Holzbauweise verbessert den Energiehaushalt, während die Gasheizung durch eine Pelletanlage ersetzt und mit einer Photovoltaikanlage kombiniert wird. Die Gebäudehülle erfüllt den Minergie-Standard, natürliche Materialien sorgen für ein gesundes Raumklima, und begrünte Dächer unterstützen sommerlichen Wärmeschutz und Retention.

Das Projekt überzeugt durch eine ressourcenschonende Bauweise, hohe Vorfertigung und kurze Bauzeit, wodurch der Schulbetrieb weitgehend aufrechterhalten werden kann. Mit seiner klaren Struktur, ökologischen Haltung und architektonischen Kontinuität schafft die Erweiterung einen zukunftsweisenden Lern- und Lebensraum, der pädagogische, funktionale und ästhetische Ansprüche gleichermassen erfüllt.