Planerwahlverfahren, 2025

Studienauftrag Neubau Werkhof und Verwaltungsabteilung, Menziken

2. Rang

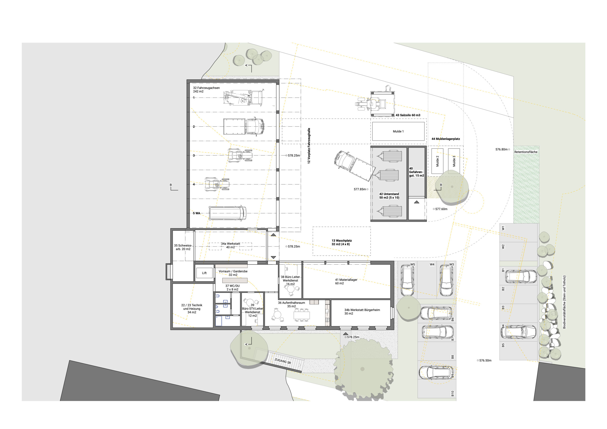
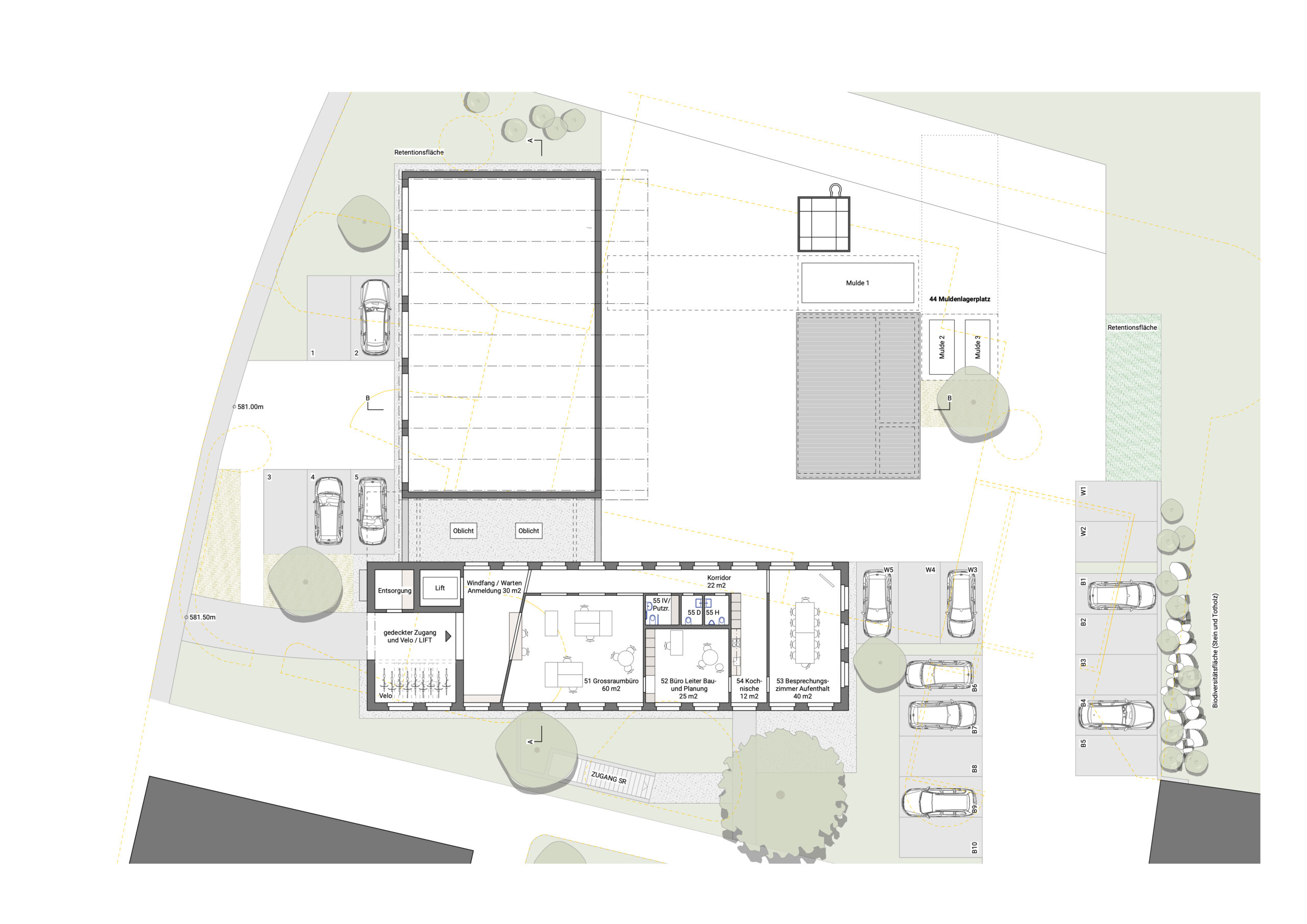
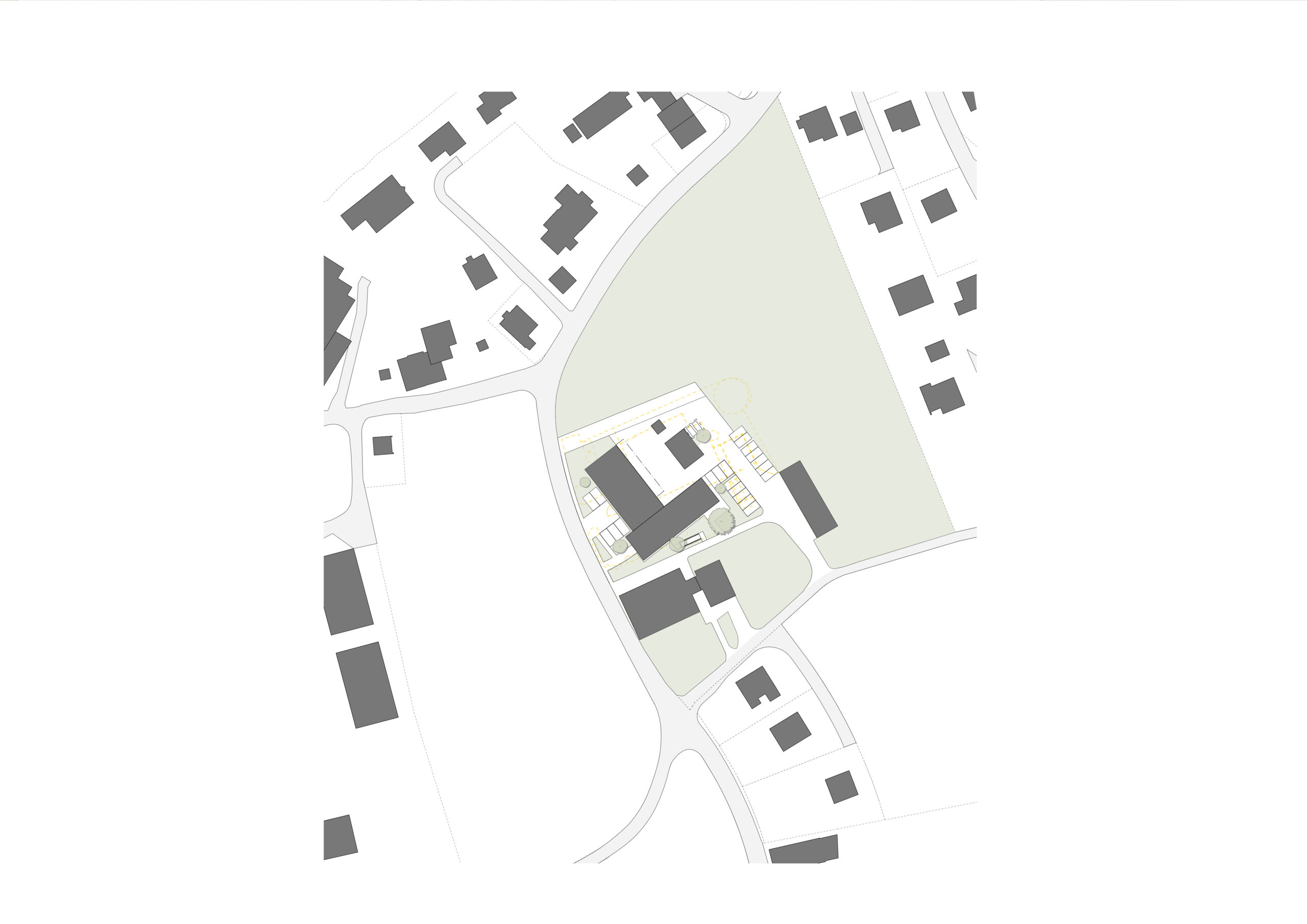
Der Neubau des Werkhofs ergänzt das bestehende Bürgerheim entlang der Kleinfeldstrasse und stärkt die Identität des Standorts. Durch die gezielte Setzung und Drehung des Gebäudes bleibt der prägnante Charakter des Bürgerheims erhalten, während die natürliche Geländesituation die klare Trennung der Nutzungen unterstützt. Kundenzugang und Langsamverkehr erfolgen bergseits, der Werkhof wird über die Nordseite erschlossen, und ein fussläufiger Weg verbindet Bürgerheim und Neubau.

Der Bürotrakt in verputztem Zweischalen-Massivbau nimmt gestalterisch Bezug auf das Bürgerheim, während Werkstatt und Fahrzeughalle hangseitig als Holzfassadenbauten gestaltet sind. Hochwertige Fenstergewände, gefaltete Tragsysteme und markante Dachlandschaften schaffen eine ruhige, zurückhaltende, aber spannende Architektur. Der Bürotrakt ist für eine spätere Aufstockung vorbereitet, und der unterirdisch integrierte Zivilschutzraum übernimmt zusätzlich Archivfunktionen mit eigenständigem Zugang.

Die Organisation orientiert sich an kurzen Wegen, funktionaler Klarheit und optimaler Orientierung der Bereiche. Flexible Büros, klar gegliederte Zufahrten und Vorplätze erleichtern die Abläufe, während die Aussenräume talseitig biodivers gestaltet und für Versickerung und Retention genutzt werden.

Nachhaltigkeit und Effizienz stehen im Zentrum: Langlebige Materialien, Holz aus regionaler Produktion, hochgedämmte Gebäudehülle und bedarfsorientierte Haustechnik reduzieren Betriebskosten und CO₂-Emissionen. Die zentrale Wärmeerzeugung basiert auf erneuerbaren Energien, ergänzt durch eine Photovoltaikanlage auf den Dachflächen, die den Eigenstrombedarf abdeckt und bei Bedarf überschüssige Energie liefert. So entsteht ein funktionaler, ökologisch effizienter Werkhof, der bestehendes Bürgerheim und Standort harmonisch ergänzt.